

Listing Courtesy of: SW LOUISIANA ASSOCIATION OF REALTORS / Century 21 Bono Realty / Debra "Debbie" Holt - Contact: Cell: 337-302-3324
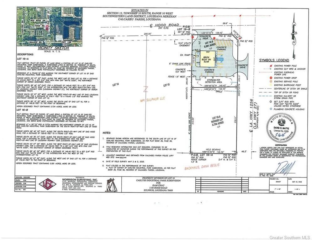
110 Hood Road Sulphur, LA 70665
Active (316 Days)
$100,000 (USD)
1
SQFT
MLS #:
SWL25002995
SWL25002995
Type
Land
Land
County
Calcasieu Parish
Calcasieu Parish
Community
Carlyss Ind. Park
Carlyss Ind. Park
Listed By
Debra "Debbie" Holt, Century 21 Bono Realty, Contact: Cell: 337-302-3324
Source
SW LOUISIANA ASSOCIATION OF REALTORS
Last checked Apr 4 2026 at 3:53 AM GMT+0000
SW LOUISIANA ASSOCIATION OF REALTORS
Last checked Apr 4 2026 at 3:53 AM GMT+0000
Bathroom Details
Subdivision
- Carlyss Ind. Park
Lot Information
- Outside City Limits
- Irregular Lot
- Partially Cleared
Utility Information
- Utilities: Water Available, Sewer Available, Electricity Available, Water Source: Other, Water Not Available
- Sewer: Unknown
Additional Information: Bono Realty | Cell: 337-302-3324
Location
Estimated Monthly Mortgage Payment
*Based on Fixed Interest Rate withe a 30 year term, principal and interest only
Listing price
Down payment
%
Interest rate
%Mortgage calculator estimates are provided by C21 Bono Realty and are intended for information use only. Your payments may be higher or lower and all loans are subject to credit approval.
Disclaimer: Square footage is based on information available to agent, including County records. Information has not been verified by agent and should be verified by buyer.
Description